Another Modern Residence
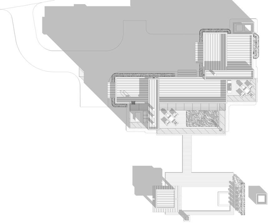
The owners want a small house—2,800 SF—but they have a large extended family. They have a collection of Buddha’s from years spent living in Asia, which they want to display. And the husband is an armchair architect, who favors Art and Crafts buildings. The program has grown a bit. The Buddha’s have given rise to an axial scheme, which is anchored by the sculptures. But after visiting the Seremet’s house, the style has gone thoroughly Modern. To anchor the building to its site, the primary entry is at grade. From there, one either turns to ascend an interior stair to the main floor, or proceeds along the axis into an immense screened porch, which covers most of the ground level. The axis continues over a bridge to a grade-level pool, which occupies a small marsh island. Design continues….









Leave a comment